Tir ac Eiddo LWH Land and Property
  • Home
  • Contact Us
  • Request Free Valuation

Type

Property Type

Bedrooms

Bathrooms

Min. Price

Max. Price

1
2
3
4
5
6
7
8
9
10
11
12
13
14
15
16
17
18
19
20
21
22
23
24
25
26
27

Asking Price £490,000

3 beds 2 baths 1 garage

Available

Sgubor Wennol Ty Du Holiday Let, Llannor - 3ac

Features

3 Acres
Excellent Occupancy
Qualifying for Business Rates
Rural Location with Views

Summary

Spacious 3-bedroom barn conversion Holiday Let set in 3 acres located in a rural location on the outskirts of Llannor | Eiddo gwledig yn cynnwys 3 llofft mewn 3 erw. The barn conversion development was completed in 2008, and has been finished to an high specification. Originally built as a dream home or the current owners, the property is now used as used has a holiday let. The 3 acres accompanying the property consists of the tree lined driveway, garden and a paddock wrapping around the South side of the property.

Description

Eiddo gwledig yn cynnwys 3 llofft mewn 3 erw | Spacious 3-bedroom barn conversion set in 3 acres located in a rural location on the outskirts of Llannor.

The barn conversion development was completed in 2008, and has been finished to an high specification. Originally built as a dream home for the current owners, the property is now used as used has a holiday let.

The 3 acres accompanying the property consists of the tree lined driveway, garden and a paddock wrapping around the South side of the property.

The paddock represents a black canvas of good quality pasture to suit the needs and aspirations of potential buyers.

The property is set over two floors comprising a spacious open plan kitchen diner, opening to a sun room and utility room. The kitchen and dining area opens to a large living room, with patio doors to the South facing terrace.

The first floor is divided in two, a staircase from the living room leads to the master suite, with ensuite and Juliet balcony overlooking the adjoining land with far reaching views, including Bardsey Island in the distance. The remaining two bedrooms and family bathroom are located above the kitchen, accessed via their own staircase.

The property is well-presented and finished, currently furnished as a holiday let.

To the side of the property, a substantial detached double garage has been constructed. Plans were considered by the current owner to convert the building to a separate annex.

Sgubor is located approximately 1 mile from Llannor and 4 miles from the Market Town of Pwllheli by car. The property is accessed via a minor public road between Llannor and Rhosfawr.

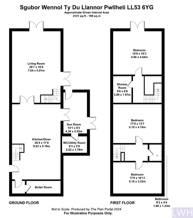
The accommodation comprises of:

Ground Floor:

Kitchen Diner - 5.19m. x 8.03m
Fitted Units, Large Dining Area, Staircase to Two Bedrooms

Sun Room - 2.52m x 4.38m
Patio Doors to Garden

Utility Room - 1.76m x 2.52m
WC, Fitted Units, Provision for White Goods

Living Room - 5.01m x 7.64m
Patio Doors to Garden, and South Facing Terrace

First Floor (Southern Master Suite):

Shower Room - 1.97m x 2.89m
WC, Basin and Shower

Bedroom - 4.64m x 4.80m
Patio Doors to Juliet Balcony

First Floor (Northern Wing):

Bathroom - 1.77m x 1.88m
WC, Basin and Bath

Bedroom - 4.15 x 5.19m

Bedroom - 3.33m x 5.19m

UPVC Windows and Doors
Mains Water and Private Drainage
Oil Fired Central Heating
EPC: D
Council Tax Band: N/A
Rateable Value (Self Catering Accommodation): Current rateable value (1 April 2023 to present) £2,650

Directions
From Rhosfawr, head West towards Boduan and Nefyn, after passing the right hand turning for Wynnstay and the industrial area follow the B4354 for a further half a mile before taking the next left hand turning, immediately beyond a small lay-by. Follow the single track road towards Llannor for a further 1 mile, the entrance to Sgubor Wennol Ty Du is located on the right hand side, beyond a small bridge.

Method of Sale:
The land is offered for sale by Private Treaty.

Viewing:
Strictly by appointment only.

Tenure:
We are advised that the land is Freehold with vacant possession on completion.

PROPERTY MISDESCRIPTIONS ACT 1991: The Agents has not tested any apparatus, equipment, fixtures and fittings, or services, so cannot verify that they are in working order or fit for the purpose. The buyer is advised to obtain verification from his or her Professional Buyer, References to the Tenure of the property are based on information supplied by the Vendor. The agents have not had sight of the title documents. The buyer is advised to obtain verification from their Solicitor. You are advised to check the availability of any property before travelling any distance to view. The plans and drawings provided are for illustrative purposes only. Any areas, measurements or distances are approximate. The text and plans are for guidance only and are not necessarily comprehensive. It should not be assumed that the property has all necessary planning, building regulation or other consents.

Utilities, Rights, Easements & Risks

Utility Supplies
Electricity Ask Agent
Water Ask Agent
Heating Ask Agent
Broadband Ask Agent
Sewerage Ask Agent
Rights & Restrictions
Article 4 Area Ask Agent
Listed property Ask Agent
Restrictions Ask Agent
Required access Ask Agent
Rights of Way Ask Agent
Risks
Flooded in last 5 years Ask Agent
Flood defenses Ask Agent
Flood sources Ask Agent

Additional Details

Land
Has Double Glazing
Has Outbuildings
Development Opportunity
Investment Opportunity
Bedrooms: 3 Bedrooms
Bathrooms: 2 Bathrooms
Receptions: 1 Reception
Additional Toilets: 1 Toilet
Kitchens: 1 Kitchen
Dining Rooms: 1 Dining Room
Garages: 1 Garage
Parking Spaces: 2 Parking Spaces
Tenure: Freehold

EPC Charts

EPC EE chart
EPC EI chart

Floorplans

Sgubor Wennol Ty Du Llannor Pwllheli LL53 6YG
OS Plan Whole 3.0 ac
Location Plan

Brochures

  • Brochure of Sgubor Wennol Ty Du Revised

Videos

  • Sgubor Wennol

Logo

LWH Land and Property - Pwllheli

27 Penlan Street, Pwllheli, Gwynedd, LL53 5DE

Phone: 01758719682

Broadband Speeds

Minimum Maximum
Download 1.00 Mbps 1800.00 Mbps
Upload 0.10 Mbps 220.00 Mbps
Estimated broadband speeds provided by Ofcom for this property's postcode.

Mobile Coverage

Mobile coverage information is not available for this property.

© 2025 Tir ac Eiddo LWH Land and Property
All rights reserved.

Powered by Apex27
Pages
  • Home
  • Contact Us
Follow Us
Find us on Facebook
Find us on Instagram